Toggle navigation
(+356) 2164 9500
(+356) 9998 6779
info@sensaramalta.com
Head Office - Sensara Malta
Triq Santa Marija, Safi
09.00 to 19.00 hrs
Monday to Saturday
Home
Properties
Sales
Rentals
Foreign
About us
Services
Contacts
Send your request
Previous
Next
696,500 €
CLICK HERE for DETAILED PHOTOS
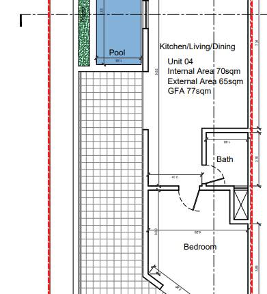
Mosta - 3 Bedroom Finished Penthouse 290sqm
Penthouse for sale • Mosta
Presently under construction and to be completed by December 2025, being offered finished including bathrooms and internal doors, forming part of a luxurious block of apartments, one on each floor.
This 3-bedroom Penthouse enjoys 137sqm internally, a 32sqm terrace, and another accessible roof terrace of circa 122sqm therefore, it is a one-off penthouse with plenty of outdoor space.
One must view it to understand its uniqueness.
Optional garages are available starting from Euros 45,000.
Freehold.
Rooms and Features
Code
V021544
Locality
Mosta
Property type
Penthouse
Price
696,500 €
Locals
1
Bedrooms
3
Bathrooms
2
Sqm
290
Terraces
2
Floor
4
Energetic class
Not applicable
Property Conditions
Under Construction
Photos • Floorplans • Video
Photos
Options
Print Property sheet
Send property sheet by mail
Schedule a visit
RealEstate Brokers
Kitney Claudia
+356 9940 4319
+356 9998 6779
+356 9998 6775
claudia@sensaramalta.com
Information request
Name *
Phone *
E-mail *
Request Details *
I authorize the processing of my personal data according Regolamento UE n. 679/2016 -
Privacy Policy
I authorize the processing of data for marketing purposes, promotional activities, commercial offers and market surveys.
Send
Share on
We also recommend
for Sale
Birzebbugia - 2 Bedroom Penthouse On Plan
360,000 €
for Sale
Mosta - 4th floor Fully Finished 1 Bedroom Penthouse + full roof & airspace with Car Space Option
358,500 €
for Sale
Zurrieq - 1 Bedroom Finished Penthouse + Pool + Terrace, On Plan
379,000 €
Keep default settings X
Use of cookies
This site uses cookies. Our (own) cookies and those of our Partners (third party cookies) are used to offer you a unique experience with us. For this reason, together with our partners, we collect and process non-sensitive information (such as the identifier of your device or the pages you visit).
At any time you can delete, modify or verify the information you share in
Cookie preference
or in our
Cookie Policy
and
Privacy Policy
.
Necessary
Functional
Profiling
Analytics
Accept all
Decline all
Accept selected
Cookie preference