Toggle navigation
(+356) 2164 9500
(+356) 9998 6779
info@sensaramalta.com
Head Office - Sensara Malta
Triq Santa Marija, Safi
09.00 to 19.00 hrs
Monday to Saturday
Home
Properties
Sales
Rentals
Foreign
About us
Services
Contacts
Send your request
Previous
Next
300,000 €
CLICK HERE for DETAILED PHOTOS
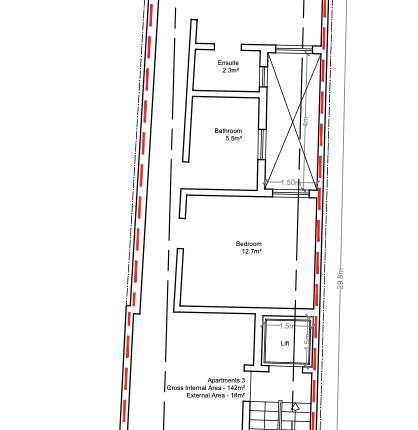
Qormi - 3 Bedroom Apartment On Plan Large Terrace
3+ bedroom apartment for sale • Qormi
Opportunity to own a spacious apartment in the heart of Qormi is now available in shell form, offering the opportunity to customize your dream home. The property features a bright open-plan kitchen/dining/living, three well sized bedrooms master with ensuite, a main bathroom, a spacious front terrace. This property is still on plan and will be offered in shell form. Optional garages are available at an extra price.
Rooms and Features
Code
V021470
Locality
Qormi
Property type
3+ bedroom apartment
Price
300,000 €
Locals
1
Bedrooms
3
Bathrooms
2
Sqm
112
Terraces
1
Floor
4
Energetic class
Nondescript
Photos • Floorplans • Video
Photos
Options
Print Property sheet
Send property sheet by mail
Schedule a visit
RealEstate Brokers
Zahra Gaynor
+356 7933 5643
+356 9998 6775
+356 9998 6779
gaynor@sensaramalta.com
Information request
Name *
Phone *
E-mail *
Request Details *
I authorize the processing of my personal data according Regolamento UE n. 679/2016 -
Privacy Policy
I authorize the processing of data for marketing purposes, promotional activities, commercial offers and market surveys.
Send
Share on
We also recommend
for Sale
Gharghur - 3 Bedroom 1st Floor Apartment + Views
425,000 €
for Sale
Xaghra Gozo - 3 Bedroom Apartment On Plan
180,000 €
for Sale
Marsascala - 212sqm 3 Bedroom Fully Finished Apartment + Terrace + Optional Garage
430,000 €
Keep default settings X
Use of cookies
This site uses cookies. Our (own) cookies and those of our Partners (third party cookies) are used to offer you a unique experience with us. For this reason, together with our partners, we collect and process non-sensitive information (such as the identifier of your device or the pages you visit).
At any time you can delete, modify or verify the information you share in
Cookie preference
or in our
Cookie Policy
and
Privacy Policy
.
Necessary
Functional
Profiling
Analytics
Accept all
Decline all
Accept selected
Cookie preference