Toggle navigation
(+356) 2164 9500
(+356) 9998 6779
info@sensaramalta.com
Head Office - Sensara Malta
Triq Santa Marija, Safi
09.00 to 19.00 hrs
Monday to Saturday
Home
Properties
Sales
Rentals
Foreign
About us
Services
Contacts
Send your request
Previous
Next
215,000 €
CLICK HERE for DETAILED PHOTOS
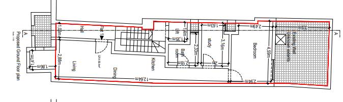
Qormi - 2 Bedroom Apartment On Plan
2 bedroom apartment for sale • Qormi
Opportunity to own a spacious apartment in the heart of Qormi is now available in shell form, offering the opportunity to customize your dream home. The property features a bright open-plan kitchen/dining/living, two well sized bedrooms, a main bathroom, internal yard and a private back yard, ideal for outdoor relaxation or entertaining. This property is still on plan and will be offered in shell form. Optional garages are available at an extra price.
Rooms and Features
Code
V021464
Locality
Qormi
Property type
2 bedroom apartment
Price
215,000 €
Locals
1
Bedrooms
2
Bathrooms
1
Sqm
105
Terraces
2
Floor
Ground floor
Energetic class
Nondescript
Photos • Floorplans • Video
Photos
Options
Print Property sheet
Send property sheet by mail
Schedule a visit
RealEstate Brokers
Zahra Gaynor
+356 7933 5643
+356 9998 6775
+356 9998 6779
gaynor@sensaramalta.com
Information request
Name *
Phone *
E-mail *
Request Details *
I authorize the processing of my personal data according Regolamento UE n. 679/2016 -
Privacy Policy
I authorize the processing of data for marketing purposes, promotional activities, commercial offers and market surveys.
Send
Share on
We also recommend
for Sale
Valletta - Exquisite Apartment Fully Converted
850,000 €
for Sale
Hamrun - 2 Bedroom Ground Floor Apartment On Plan
195,000 €
for Sale
Zurrieq - 2 Bedroom Finished Apt + 2 Balconies
265,000 €
Keep default settings X
Use of cookies
This site uses cookies. Our (own) cookies and those of our Partners (third party cookies) are used to offer you a unique experience with us. For this reason, together with our partners, we collect and process non-sensitive information (such as the identifier of your device or the pages you visit).
At any time you can delete, modify or verify the information you share in
Cookie preference
or in our
Cookie Policy
and
Privacy Policy
.
Necessary
Functional
Profiling
Analytics
Accept all
Decline all
Accept selected
Cookie preference