Toggle navigation
(+356) 2164 9500
(+356) 9998 6779
info@sensaramalta.com
Head Office - Sensara Malta
Triq Santa Marija, Safi
09.00 to 19.00 hrs
Monday to Saturday
Home
Properties
Sales
Rentals
Foreign
About us
Services
Contacts
Send your request
Previous
Next
390,000 €
CLICK HERE for DETAILED PHOTOS
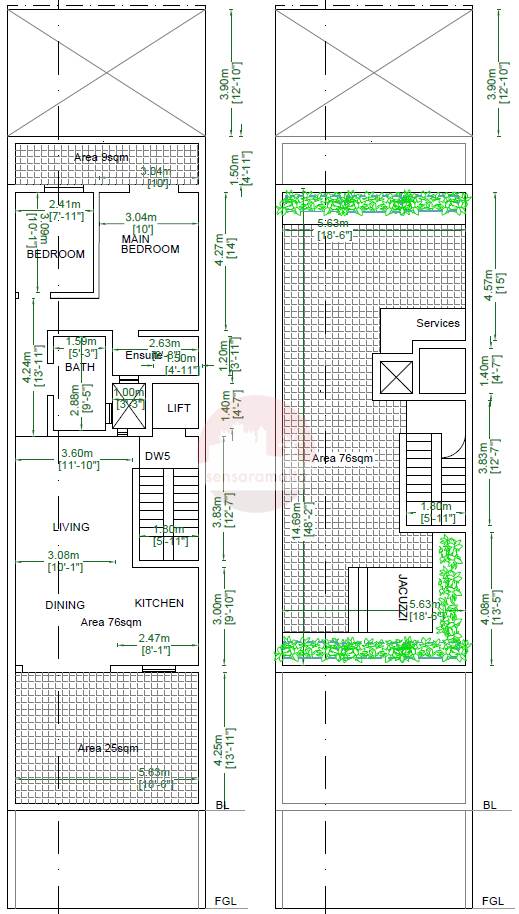
Safi - 2 Bedroom Penthouse Unobstructed Views + Airspace + Jacuzzi
Penthouse for sale • Safi
If you're searching for a property with an ample of outdoor space, no one living above your head and unobstructed views this is the right property for you. This Penthouse consists of an open plan kitchen/dining/living, two-bedrooms master with ensuite and a balcony, main bathroom, front terrace and full roof with space for a jacuzzi. This project has started and is estimate to be ready by end 2025.
This penthouse is being offered in shell form with common parts ready. Optional garage is available at an extra price.
Rooms and Features
Code
V021334
Locality
Safi
Property type
Penthouse
Price
390,000 €
Locals
1
Bedrooms
3
Bathrooms
2
Sqm
186
Garages
1
Balconies
1
Terraces
2
sqm Terrace
110
Floor
5
Energetic class
Nondescript
Photos • Floorplans • Video
Photos
Options
Print Property sheet
Send property sheet by mail
Schedule a visit
RealEstate Brokers
Dalli Andreas
+356 9998 6777
+356 9998 6779
+356 9998 6775
andreas@sensaramalta.com
Information request
Name *
Phone *
E-mail *
Request Details *
I authorize the processing of my personal data according Regolamento UE n. 679/2016 -
Privacy Policy
I authorize the processing of data for marketing purposes, promotional activities, commercial offers and market surveys.
Send
Share on
We also recommend
for Sale
Mellieha - Luxury Finished Penthouse + Views
999,000 €
for Sale
Tarxien – 3 Bedroom Penthouse (On Plan)
379,000 €
for Sale
Mgarr - Circa 160 sqm Designer Finished 3 Bedroom Penthouse + Highly Furnished + Optional Garage
655,000 €
Keep default settings X
Use of cookies
This site uses cookies. Our (own) cookies and those of our Partners (third party cookies) are used to offer you a unique experience with us. For this reason, together with our partners, we collect and process non-sensitive information (such as the identifier of your device or the pages you visit).
At any time you can delete, modify or verify the information you share in
Cookie preference
or in our
Cookie Policy
and
Privacy Policy
.
Necessary
Functional
Profiling
Analytics
Accept all
Decline all
Accept selected
Cookie preference