Toggle navigation
(+356) 2164 9500
(+356) 9998 6779
info@sensaramalta.com
Head Office - Sensara Malta
Triq Santa Marija, Safi
09.00 to 19.00 hrs
Monday to Saturday
Home
Properties
Sales
Rentals
Foreign
About us
Services
Contacts
Send your request
Previous
Next
405,000 €
CLICK HERE for DETAILED PHOTOS
Iklin - Fully Finished 2 Bedroom Elevated Maisonette with Optional Garage
Maisonette for sale • Iklin
*** Further reduction for Sensara Malta Clients ***
New Development currently under construction, offering unobstructed country views, is a small block of only 4 units, situated over this elevated maisonette.
Being offered fully finished, including bathrooms and internal doors.
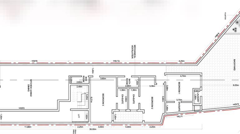
This maisonette boasts a circa 110 sqm internal space, featuring a large hall upon entrance, ample space for a study/library room, 2 double bedrooms, each served with an ensuite, a main bathroom, and a unique feature that is rarely found in today's new developments: a back open-plan area overlooking your private yard.
Freehold -
Optional 2 car garages at 95k / 100k opposite the ramp
Rooms and Features
Code
V021212
Locality
Iklin
Property type
Maisonette
Price
405,000 €
Locals
1
Bedrooms
2
Bathrooms
2
Sqm
139
Terraces
1
sqm Terrace
29
Floor
Mezzanine
Energetic class
Not applicable
Property Conditions
Under Construction
Accessories:
Double Glazing
Photos • Floorplans • Video
Photos
Options
Print Property sheet
Send property sheet by mail
Schedule a visit
RealEstate Brokers
Schembri Maria Pawla
+356 7732 8183
+356 9998 6779
+356 9998 6775
pawla@sensaramalta.com
Information request
Name *
Phone *
E-mail *
Request Details *
I authorize the processing of my personal data according Regolamento UE n. 679/2016 -
Privacy Policy
I authorize the processing of data for marketing purposes, promotional activities, commercial offers and market surveys.
Send
Share on
We also recommend
for Sale
Naxxar (Sghajtar) Ground Floor Maisonette + Views
405,500 €
for Sale
Qrendi - 3 Bedroom Finished Maisonette
450,500 €
for Sale
Iklin - 290sqm 3 Bedroom Fully Finished Elevated Maisonette + Yard + Street Level 2 Car Garage
605,000 €
Keep default settings X
Use of cookies
This site uses cookies. Our (own) cookies and those of our Partners (third party cookies) are used to offer you a unique experience with us. For this reason, together with our partners, we collect and process non-sensitive information (such as the identifier of your device or the pages you visit).
At any time you can delete, modify or verify the information you share in
Cookie preference
or in our
Cookie Policy
and
Privacy Policy
.
Necessary
Functional
Profiling
Analytics
Accept all
Decline all
Accept selected
Cookie preference