Toggle navigation
(+356) 2164 9500
(+356) 9998 6779
info@sensaramalta.com
Head Office - Sensara Malta
Triq Santa Marija, Safi
09.00 to 19.00 hrs
Monday to Saturday
Home
Properties
Sales
Rentals
Foreign
About us
Services
Contacts
Send your request
Previous
Next
320,000 €
CLICK HERE for DETAILED PHOTOS
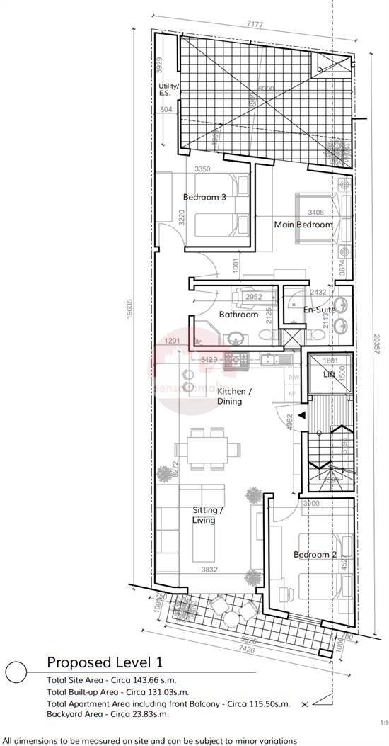
Qormi - 3 Bedroom Finished Apartment
3+ bedroom apartment for sale • Qormi
Discount Available for pre construction purchases
New on the market and currently being offered on plan, this residential development consists of a small, exclusive block comprising only four units in total. Each unit is being offered in a highly finished state, excluding bathrooms and internal doors. Construction is scheduled to commence around the summer of 2025, making this a fantastic opportunity to secure a property early.
This particular unit, situated on the first floor, is designed as a maisonette. It features a spacious layout with a large, comfortable backyard and a front balcony, providing ample outdoor space for relaxation and entertaining. The interior includes a well-planned kitchen, living, and dining area, along with three double bedrooms. Two of the bedrooms are complemented by en-suite facilities, in addition to a main bathroom.
This property is an ideal choice for those seeking a modern and functional home in a small and private block.
Rooms and Features
Code
V020888
Locality
Qormi
Property type
3+ bedroom apartment
Price
320,000 €
Locals
1
Bedrooms
3
Bathrooms
3
Sqm
115.5
Balconies
1
Terraces
1
Floor
1
Energetic class
Not applicable
Photos • Floorplans • Video
Photos
Options
Print Property sheet
Send property sheet by mail
Schedule a visit
RealEstate Brokers
Schembri Maria Pawla
+356 7732 8183
+356 9998 6779
+356 9998 6775
pawla@sensaramalta.com
Information request
Name *
Phone *
E-mail *
Request Details *
I authorize the processing of my personal data according Regolamento UE n. 679/2016 -
Privacy Policy
I authorize the processing of data for marketing purposes, promotional activities, commercial offers and market surveys.
Send
Share on
We also recommend
for Sale
San Pawl il-Bahar - 2nd Floor 3 Bedroom Apartment
262,000 €
for Sale
Marsalforn Gozo - 3 Bdr Furnished Apartment + Pool
338,000 €
for Sale
Zejtun - 3 Bedroom Apartment + Terrace - Furnished
358,000 €
Keep default settings X
Use of cookies
This site uses cookies. Our (own) cookies and those of our Partners (third party cookies) are used to offer you a unique experience with us. For this reason, together with our partners, we collect and process non-sensitive information (such as the identifier of your device or the pages you visit).
At any time you can delete, modify or verify the information you share in
Cookie preference
or in our
Cookie Policy
and
Privacy Policy
.
Necessary
Functional
Profiling
Analytics
Accept all
Decline all
Accept selected
Cookie preference