Toggle navigation
(+356) 2164 9500
(+356) 9998 6779
info@sensaramalta.com
Head Office - Sensara Malta
Triq Santa Marija, Safi
09.00 to 19.00 hrs
Monday to Saturday
Home
Properties
Sales
Rentals
Foreign
About us
Services
Contacts
Send your request
Previous
Next
391,000 €
CLICK HERE for DETAILED PHOTOS
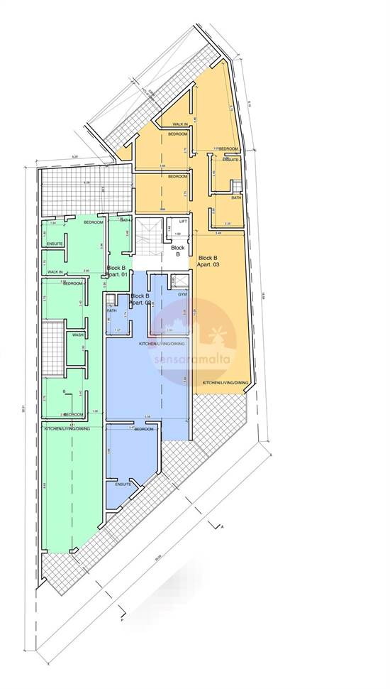
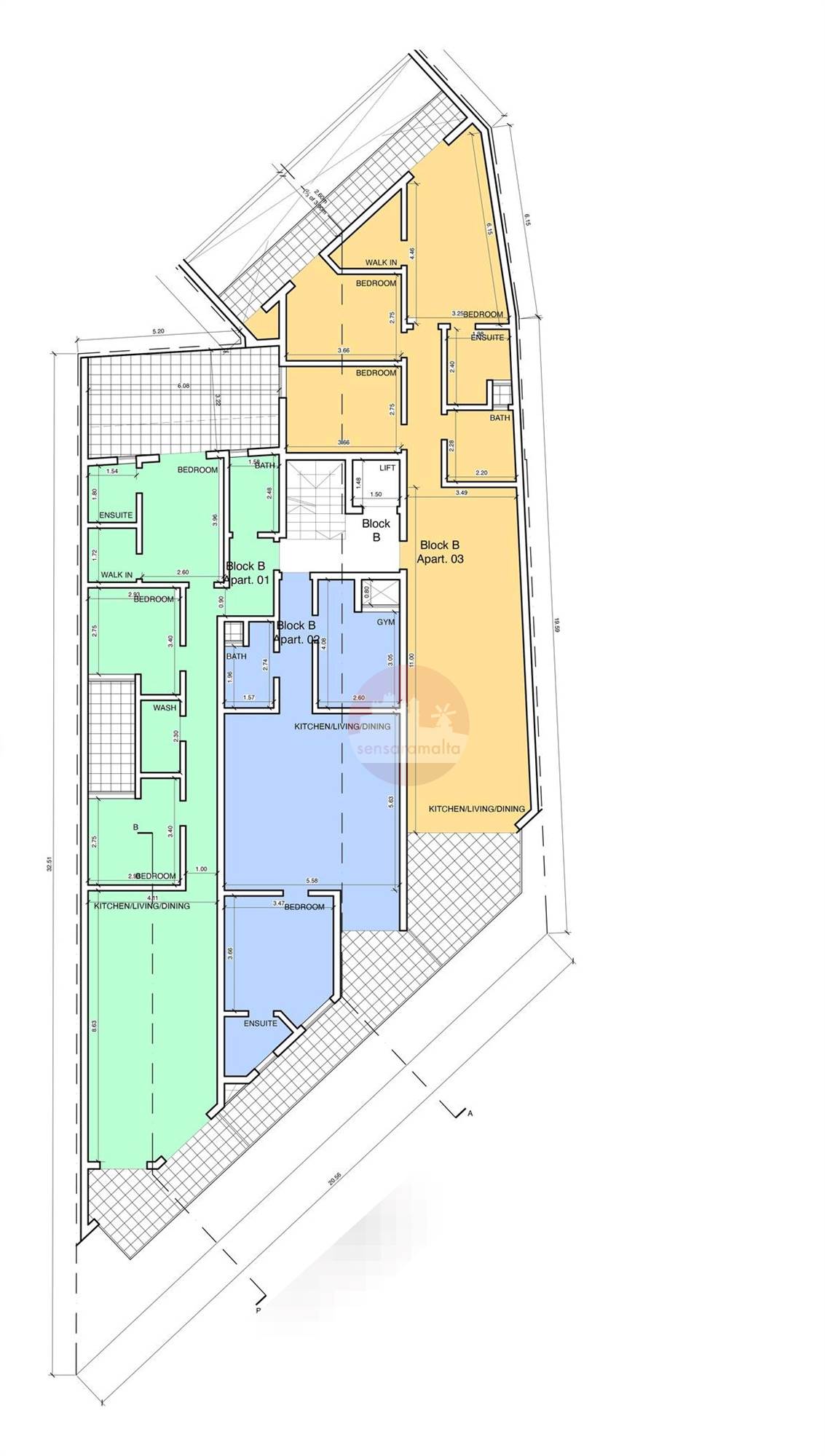
Zejtun - Green Loan Approval * Fully Finished, 2nd floor, 3 Bedroom Apartment + Optional Garage
3+ bedroom apartment for sale • Zejtun
First time buyer call !!! Zejtun New modern development * units are being sold fully finished, including bathrooms and internal doors.
Each unit also features a PV panel that generates electricity and a heat pump system that supplies hot water, offering a more efficient alternative to traditional geysers.
Additionally, buyers are eligible for a Green Loan with Bank of Valletta (BOV). Furthermore, anyone who opts to purchase a garage together with a unit will find us flexible on the garage value.
Optional garages are available starting from Eur 70,000
Freehold.
Rooms and Features
Code
V020256
Locality
Zejtun
Property type
3+ bedroom apartment
Price
391,000 €
Locals
1
Bedrooms
3
Bathrooms
2
Sqm
126
Energetic class
Nondescript
Photos • Floorplans • Video
Photos
Options
Print Property sheet
Send property sheet by mail
Schedule a visit
RealEstate Brokers
Schembri Maria Pawla
+356 7732 8183
+356 9998 6779
+356 9998 6775
pawla@sensaramalta.com
Information request
Name *
Phone *
E-mail *
Request Details *
I authorize the processing of my personal data according Regolamento UE n. 679/2016 -
Privacy Policy
I authorize the processing of data for marketing purposes, promotional activities, commercial offers and market surveys.
Send
Share on
We also recommend
for Sale
Qrendi - 1st Floor Large 4 Finished Bedroom Apartment
502,000 €
for Sale
Mosta, Already Built ** Finished 3 Bedroom Apartment with terrace & balcony ** optional Garages
394,000 €
for Sale
Qawra - Three Bedroom Apartment
410,000 €
Keep default settings X
Use of cookies
This site uses cookies. Our (own) cookies and those of our Partners (third party cookies) are used to offer you a unique experience with us. For this reason, together with our partners, we collect and process non-sensitive information (such as the identifier of your device or the pages you visit).
At any time you can delete, modify or verify the information you share in
Cookie preference
or in our
Cookie Policy
and
Privacy Policy
.
Necessary
Functional
Profiling
Analytics
Accept all
Decline all
Accept selected
Cookie preference