Toggle navigation
(+356) 2164 9500
(+356) 9998 6779
info@sensaramalta.com
Head Office - Sensara Malta
Triq Santa Marija, Safi
09.00 to 19.00 hrs
Monday to Saturday
Home
Properties
Sales
Rentals
Foreign
About us
Services
Contacts
Send your request
Previous
Next
725,000 €
CLICK HERE for DETAILED PHOTOS
Mosta, Under Constriction , 3 Bedroom Penthouse Highly Finished with full ownership of roof
Penthouse for sale • Mosta
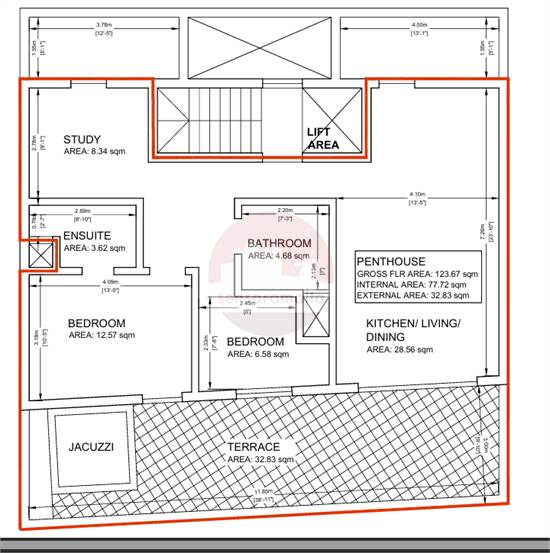
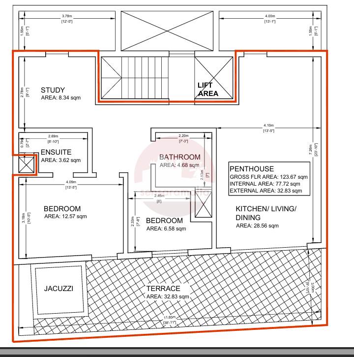
Forming part of a small block of apartments, laid on the fifth floor, measuring circa 125sqm and situated in a sought-after area.
The layout comprises a hallway leading to its open plan kitchen/living/dining overlooking a large front terrace with a jacuzzi, 2 double bedrooms and a study room , a main with ensuite, a bathroom, a third bedroom, and two back terraces.
Full ownership of roof and airspace.
Freehold.
Rooms and Features
Code
V020097
Locality
Mosta
Property type
Penthouse
Price
725,000 €
Locals
1
Bedrooms
3
Bathrooms
2
Sqm
124
Sqm balcon
33
Terraces
2
Floor
4
Energetic class
Not applicable
Property Conditions
Under Construction
Accessories:
Double Glazing, Veranda
Photos • Floorplans • Video
Photos
Options
Print Property sheet
Send property sheet by mail
Schedule a visit
RealEstate Brokers
Schembri Maria Pawla
+356 7732 8183
+356 9998 6779
+356 9998 6775
pawla@sensaramalta.com
Information request
Name *
Phone *
E-mail *
Request Details *
I authorize the processing of my personal data according Regolamento UE n. 679/2016 -
Privacy Policy
I authorize the processing of data for marketing purposes, promotional activities, commercial offers and market surveys.
Send
Share on
We also recommend
for Sale
Safi - 3 Bedroom Furnished Penthouse + Airspace + Views
460,000 €
for Sale
Zurrieq - 3 Bedroom Finished Penthouse - Block Under Construction
495,000 €
for Sale
Fgura - 2 Bedroom Duplex Finished Penthouse On Plan
440,000 €
Keep default settings X
Use of cookies
This site uses cookies. Our (own) cookies and those of our Partners (third party cookies) are used to offer you a unique experience with us. For this reason, together with our partners, we collect and process non-sensitive information (such as the identifier of your device or the pages you visit).
At any time you can delete, modify or verify the information you share in
Cookie preference
or in our
Cookie Policy
and
Privacy Policy
.
Necessary
Functional
Profiling
Analytics
Accept all
Decline all
Accept selected
Cookie preference