Toggle navigation
(+356) 2164 9500
(+356) 9998 6779
info@sensaramalta.com
Head Office - Sensara Malta
Triq Santa Marija, Safi
09.00 to 19.00 hrs
Monday to Saturday
Home
Properties
Sales
Rentals
Foreign
About us
Services
Contacts
Send your request
Previous
Next
328,000 €
CLICK HERE for DETAILED PHOTOS
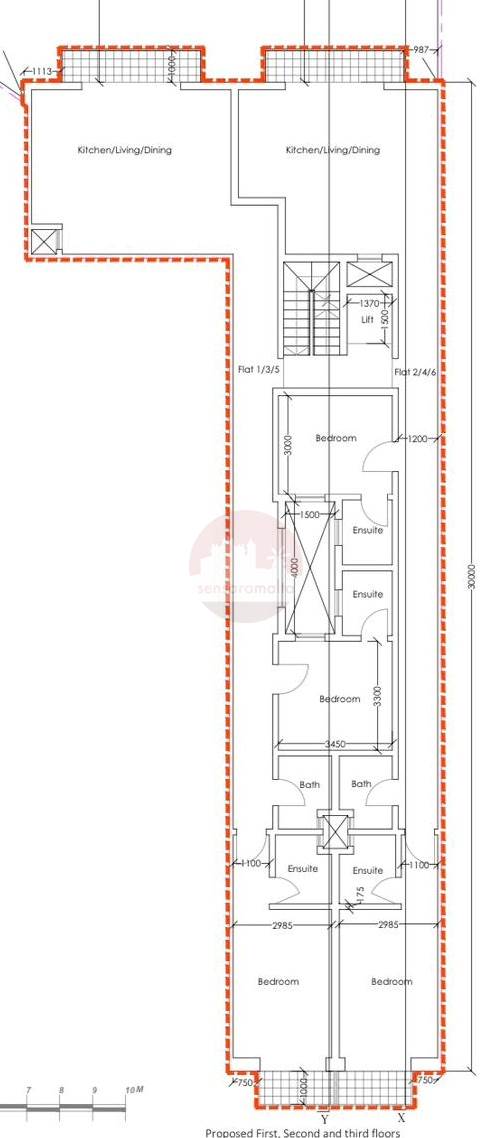
Safi - 2nd Floor 2 Bedroom Finished Apartment - Under Construction
2 bedroom apartment for sale • Safi
Currently block is under construction - In the quiet village of Safi comes the opportunity to acquire a two-bedroom second floor Apartment being offered Finished excluding bathrooms and internal doors.
Upon entering one finds a kitchen/living/dining/balcony, Master Bedroom (with en-suite), Bathroom, second Bedroom with a balcony.
All common areas and lift will be of the highest standards.
Project is estimated to be ready in shell form by end of year 2026 and Finished by mid 2027.
Freehold
Rooms and Features
Code
V020083
Locality
Safi
Property type
2 bedroom apartment
Price
328,000 €
Locals
1
Bedrooms
2
Bathrooms
2
Sqm
90
Balconies
2
Energetic class
Not applicable
Photos • Floorplans • Video
Photos
Options
Print Property sheet
Send property sheet by mail
Schedule a visit
RealEstate Brokers
Jenkins Rita
+356 7712 7772
+356 9998 6779
+356 9998 6775
rita@sensaramalta.com
Information request
Name *
Phone *
E-mail *
Request Details *
I authorize the processing of my personal data according Regolamento UE n. 679/2016 -
Privacy Policy
I authorize the processing of data for marketing purposes, promotional activities, commercial offers and market surveys.
Send
Share on
We also recommend
for Sale
Marsaxlokk - 3rd Floor 2 Bedroom Finished Apartment
344,175 €
for Sale
Zurrieq - 3rd Floor 2 Bedroom Finished Apartment + Terrace + balcony
338,000 €
for Sale
Qormi - Fully finished 2 Bedroom Apartment
297,000 €
Keep default settings X
Use of cookies
This site uses cookies. Our (own) cookies and those of our Partners (third party cookies) are used to offer you a unique experience with us. For this reason, together with our partners, we collect and process non-sensitive information (such as the identifier of your device or the pages you visit).
At any time you can delete, modify or verify the information you share in
Cookie preference
or in our
Cookie Policy
and
Privacy Policy
.
Necessary
Functional
Profiling
Analytics
Accept all
Decline all
Accept selected
Cookie preference