Toggle navigation
(+356) 2164 9500
(+356) 9998 6779
info@sensaramalta.com
Head Office - Sensara Malta
Triq Santa Marija, Safi
09.00 to 19.00 hrs
Monday to Saturday
Home
Properties
Sales
Rentals
Foreign
About us
Services
Contacts
Send your request
Previous
Next
747,500 €
CLICK HERE for DETAILED PHOTOS
Sliema - 2/3 Bedroom Traditional Townhouse + Full Roof
Town House for sale • Sliema
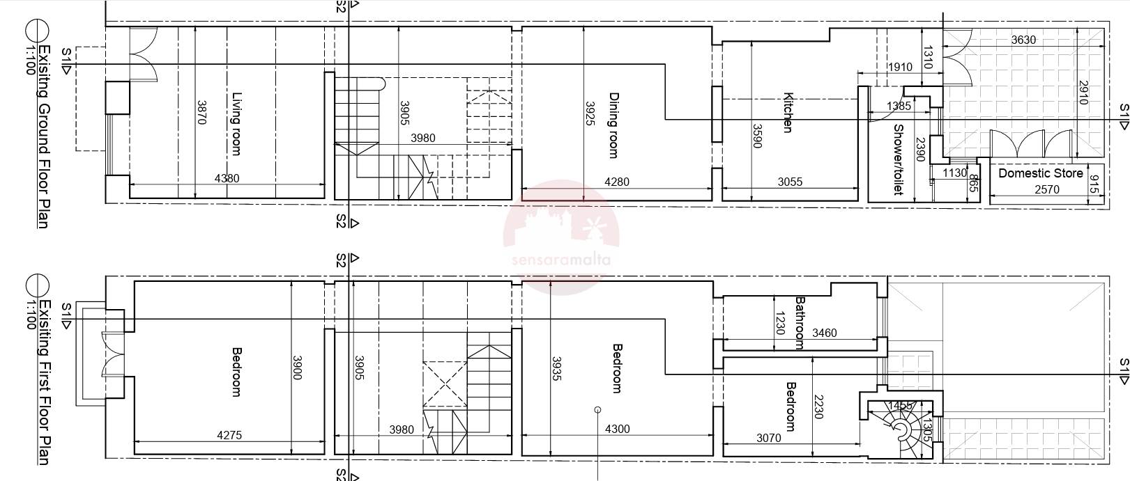
Situated in the UCA area of Sliema, this well-kept and fully furnished townhouse offers comfortable living in a sought-after location.
Upon entering, one finds a welcoming sitting area, a marble staircase leading to the first floor, a dining/living area, a kitchen, a bathroom, a backyard, and a washroom.
The first floor consists of a front-facing double bedroom with a balcony, a bathroom, a second double bedroom, and an interconnected single bedroom. There is also a garigor which leads to an intermediate storage room.
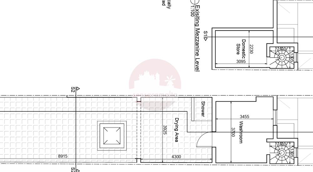
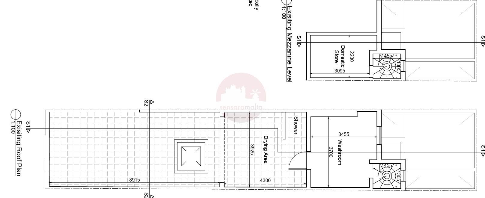
On the second floor, there is a well-sized washroom and access to a full roof, offering additional outdoor space and airspace.
Freehold.
Rooms and Features
Code
V019516
Locality
Sliema
Property type
Town House
Price
747,500 €
Locals
1
Bedrooms
3
Bathrooms
2
Sqm
95
Balconies
1
Energetic class
Not applicable
Property Conditions
Good
Accessories:
Laundry
Photos • Floorplans • Video
Photos
Options
Print Property sheet
Send property sheet by mail
Schedule a visit
RealEstate Brokers
Schembri Maria Pawla
+356 7732 8183
+356 9998 6779
+356 9998 6775
pawla@sensaramalta.com
Information request
Name *
Phone *
E-mail *
Request Details *
I authorize the processing of my personal data according Regolamento UE n. 679/2016 -
Privacy Policy
I authorize the processing of data for marketing purposes, promotional activities, commercial offers and market surveys.
Send
Share on
We also recommend
for Sale
Qormi - 500sqm UCA Townhouse + Yards + Roof
1,024,000 €
for Sale
Paola - Unconverted 3 Bedroom Townhouse + Backyard + Full Roof & Airspace
461,000 €
for Sale
Zabbar - 140sqm Townhouse - Site For Development + Backyard + Full Roof + Airspace
758,000 €
Keep default settings X
Use of cookies
This site uses cookies. Our (own) cookies and those of our Partners (third party cookies) are used to offer you a unique experience with us. For this reason, together with our partners, we collect and process non-sensitive information (such as the identifier of your device or the pages you visit).
At any time you can delete, modify or verify the information you share in
Cookie preference
or in our
Cookie Policy
and
Privacy Policy
.
Necessary
Functional
Profiling
Analytics
Accept all
Decline all
Accept selected
Cookie preference