Toggle navigation
(+356) 2164 9500
(+356) 9998 6779
info@sensaramalta.com
Head Office - Sensara Malta
Triq Santa Marija, Safi
09.00 to 19.00 hrs
Monday to Saturday
Home
Properties
Sales
Rentals
Foreign
About us
Services
Contacts
Send your request
Previous
Next
300,000 €
CLICK HERE for DETAILED PHOTOS
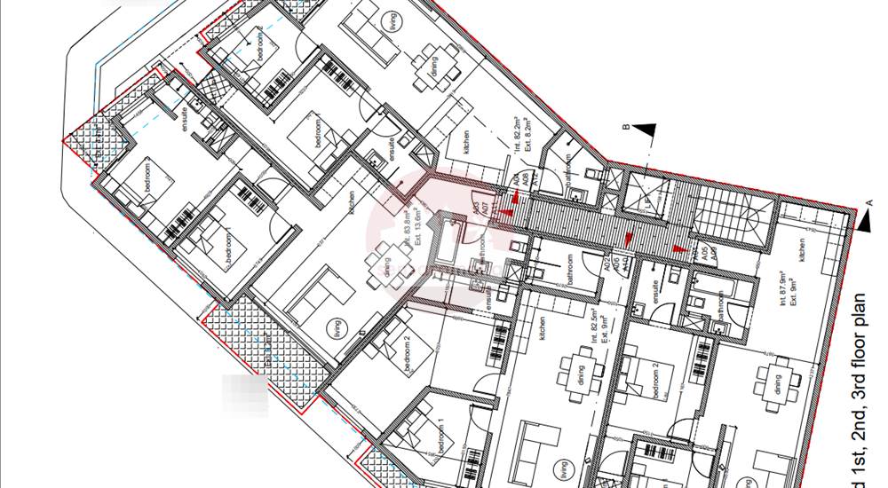
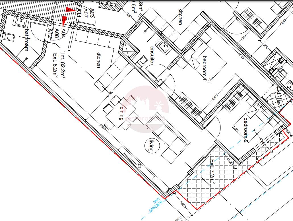
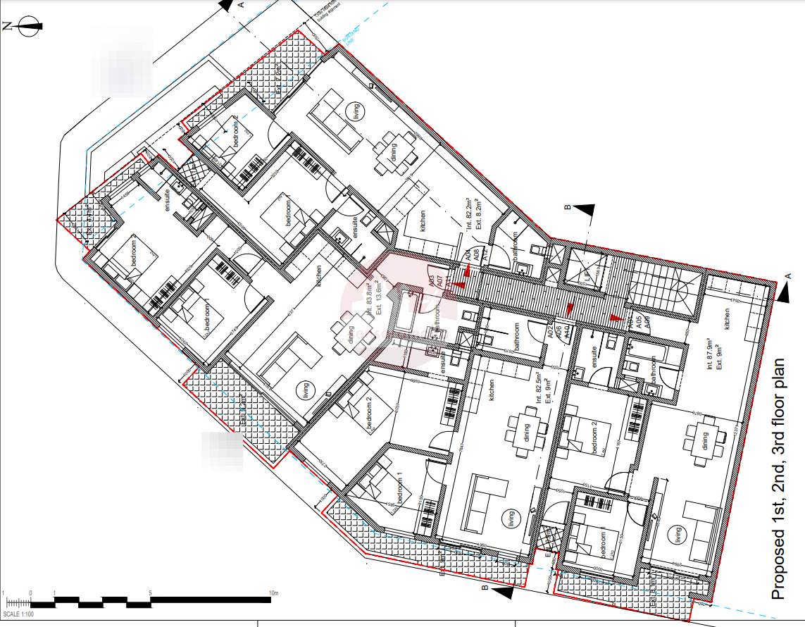
Zurrieq,3rd Floor Finished 2 Bedroom Apartment + Terrace
2 bedroom apartment for sale • Zurrieq
In the heart of Zurrieq comes this 2-bedroom apartment situated on the 3rd floor, which is being offered finished, excluding bathrooms and internal doors
The property consists of a longish open-plan served with terrace , master bathroom, 2 bedrooms, of which the main is served with an en-suite, and a balcony.
Freehold
Rooms and Features
Code
V019252
Locality
Zurrieq
Property type
2 bedroom apartment
Price
300,000 €
Locals
1
Bedrooms
2
Bathrooms
2
Sqm
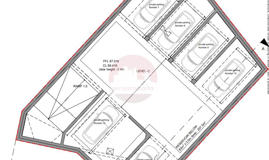
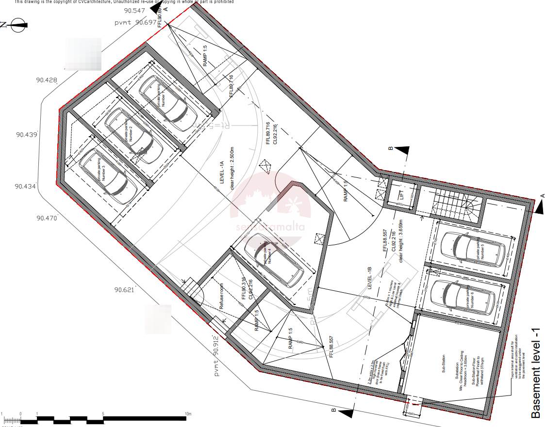
90.6
Terraces
1
Floor
3
Energetic class
Not applicable
Property Conditions
Under Construction
Photos • Floorplans • Video
Photos
Options
Print Property sheet
Send property sheet by mail
Schedule a visit
RealEstate Brokers
Schembri Maria Pawla
+356 7732 8183
+356 9998 6779
+356 9998 6775
pawla@sensaramalta.com
Information request
Name *
Phone *
E-mail *
Request Details *
I authorize the processing of my personal data according Regolamento UE n. 679/2016 -
Privacy Policy
I authorize the processing of data for marketing purposes, promotional activities, commercial offers and market surveys.
Send
Share on
We also recommend
for Sale
Zejtun - 2 Bedroom Finished Apartment
282,000 €
for Sale
St Paul's Bay - 2 Bedroom Highly Finished Apt
358,500 €
for Sale
Fgura - 2 Bedroom Finished Apartment On Plan
307,000 €
Keep default settings X
Use of cookies
This site uses cookies. Our (own) cookies and those of our Partners (third party cookies) are used to offer you a unique experience with us. For this reason, together with our partners, we collect and process non-sensitive information (such as the identifier of your device or the pages you visit).
At any time you can delete, modify or verify the information you share in
Cookie preference
or in our
Cookie Policy
and
Privacy Policy
.
Necessary
Functional
Profiling
Analytics
Accept all
Decline all
Accept selected
Cookie preference