Toggle navigation
(+356) 2164 9500
(+356) 9998 6779
info@sensaramalta.com
Head Office - Sensara Malta
Triq Santa Marija, Safi
09.00 to 19.00 hrs
Monday to Saturday
Home
Properties
Sales
Rentals
Foreign
About us
Services
Contacts
Send your request
Previous
Next
440,000 €
CLICK HERE for DETAILED PHOTOS
Birzebbugia - 3 Double Bedroom Furnished Ground Floor Maisonette
Maisonette for sale • Birzebbuga
Situated in the vicinity of Tal-Papa Area in Birzebbugia, yet close to all amenities, comes this 3 double bedroom stylish ground floor maisonette. It enjoys a full independent entrance door.
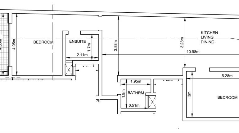
Its longish layout comprises of an internal space area of circa 116sqm, enjoying a wide corridor leading to spacious kitchen / living and dining area, 3 double bedrooms and 1 main bathroom and 1 ensuite. It is also equipped with 2 AC's; 1 in the kitchen and 1 in the main bedroom. All furniture is considered as modernly new and thus property does not need any extra costs to renovate.
It is the best chance if you are searching a ready to move property!
A large outdoor space area of circa 38.5 sqm consisting of 2 yards, makes this maisonette of higher quality, as one will own enough space to utilize the spacious yards also for entertaining.
It is being sold furnished and property can be easily accessed by a wheelchair. Freehold Property.
Rooms and Features
Code
V018341
Locality
Birzebbuga
Property type
Maisonette
Price
440,000 €
Locals
1
Bedrooms
3
Bathrooms
2
Sqm
154
Energetic class
Nondescript
Property Conditions
Perfect Conditions
Photos • Floorplans • Video
Photos
Options
Print Property sheet
Send property sheet by mail
Schedule a visit
RealEstate Brokers
Grima Marthese
+356 7929 1233
+356 9998 6779
+356 9998 6775
marthese@sensaramalta.com
Grima Vince
+356 9940 5538
+356 9998 6779
+356 2164 9500
vince@sensaramalta.com
Information request
Name *
Phone *
E-mail *
Request Details *
I authorize the processing of my personal data according Regolamento UE n. 679/2016 -
Privacy Policy
I authorize the processing of data for marketing purposes, promotional activities, commercial offers and market surveys.
Send
Share on
We also recommend
for Sale
Fgura - Ground Floor 3 Bedroom Maisonette + Views
333,000 €
for Sale
Safi - 2 Bedroom Elevated Maisonette in Shell Form Ready built
328,000 €
for Sale
Santa Venera - 3 Bedroom First Floor Maisonette + Roof
480,000 €
Keep default settings X
Use of cookies
This site uses cookies. Our (own) cookies and those of our Partners (third party cookies) are used to offer you a unique experience with us. For this reason, together with our partners, we collect and process non-sensitive information (such as the identifier of your device or the pages you visit).
At any time you can delete, modify or verify the information you share in
Cookie preference
or in our
Cookie Policy
and
Privacy Policy
.
Necessary
Functional
Profiling
Analytics
Accept all
Decline all
Accept selected
Cookie preference