Toggle navigation
(+356) 2164 9500
(+356) 9998 6779
info@sensaramalta.com
Head Office - Sensara Malta
Triq Santa Marija, Safi
09.00 to 19.00 hrs
Monday to Saturday
Home
Properties
Sales
Rentals
Foreign
About us
Services
Contacts
Send your request
Previous
Next
369,000 €
CLICK HERE for DETAILED PHOTOS
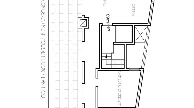
Nadur - Penthouse 3 Bedroom + Airspace
Penthouse for sale • Nadur Gozo
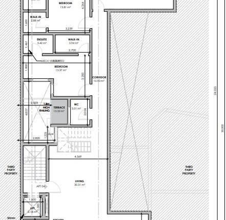
A large penthouse in a block of 8 units set on the 3rd floor served with lift. Property is being sold furnished with a front large terrace, open plan kitchen / living /dining, 3 double bedrooms, one of which has an en suite and a bathroom, back terrace. Property has its own airspace included in the price (owner is willing to sell without the airspace too). Property has country and sea views and its being offered FREEHOLD.
Rooms and Features
Code
V008156
Locality
Nadur Gozo
Property type
Penthouse
Price
369,000 €
Locals
1
Bathrooms
2
Sqm
110
Terraces
2
Energetic class
Nondescript
Property Conditions
Good
Accessories:
Air Conditioning, Elevator, Veranda
Photos • Floorplans • Video
Photos
Options
Print Property sheet
Send property sheet by mail
Schedule a visit
RealEstate Brokers
Xiberras Joanie
+356 9985 2678
+356 9998 6779
+356 9998 6775
joanie.gozo@sensaramalta.com
Information request
Name *
Phone *
E-mail *
Request Details *
I authorize the processing of my personal data according Regolamento UE n. 679/2016 -
Privacy Policy
I authorize the processing of data for marketing purposes, promotional activities, commercial offers and market surveys.
Send
Share on
We also recommend
for Sale
Ghajnsielem Gozo - 1 Bedroom + Study Shell Penthouse + Terrace + Airspace
300,000 €
for Sale
Attard - 2 Bedroom Fully Finished Penthouse
435,500 €
for Sale
Mellieha (Ghadira) - 380sqm 3 Bedroom Penthouse + Panaromic Sea Views
1,397,000 €
Keep default settings X
Use of cookies
This site uses cookies. Our (own) cookies and those of our Partners (third party cookies) are used to offer you a unique experience with us. For this reason, together with our partners, we collect and process non-sensitive information (such as the identifier of your device or the pages you visit).
At any time you can delete, modify or verify the information you share in
Cookie preference
or in our
Cookie Policy
and
Privacy Policy
.
Necessary
Functional
Profiling
Analytics
Accept all
Decline all
Accept selected
Cookie preference