Toggle navigation
(+356) 2164 9500
(+356) 9998 6779
info@sensaramalta.com
Head Office - Sensara Malta
Triq Santa Marija, Safi
09.00 to 19.00 hrs
Monday to Saturday
Home
Properties
Sales
Rentals
Foreign
About us
Services
Contacts
Send your request
Previous
Next
1,229,000 €
CLICK HERE for DETAILED PHOTOS
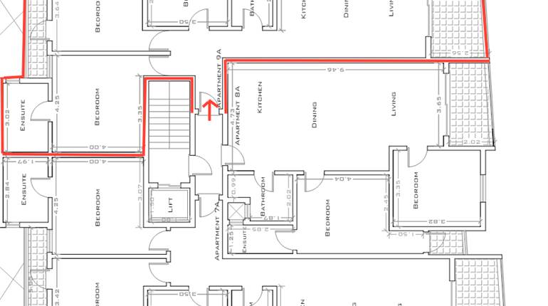
St. Julians - Large 3 Bedroom Apartment
3+ bedroom apartment for sale • San Giljan
Spacious 3-Bedroom Apartment Near Tigullio, St. Julian’s
Located just off the sought-after Tigullio area, this third-floor apartment offers a comfortable and modern living space, served with a lift for easy access.
The property features a generous open-plan kitchen, living, and dining area, perfect for entertaining. It includes three double bedrooms, two of which have their own ensuite, a main bathroom, and two balconies that bring in natural light.
This freehold apartment is an excellent investment or family home in a prime location. Contact us for more details or to schedule a viewing.
Rooms and Features
Code
V007344
Locality
San Giljan
Property type
3+ bedroom apartment
Price
1,229,000 €
Locals
1
Bathrooms
3
Sqm
165
Balconies
2
Floor
4
Energetic class
Nondescript
Photos • Floorplans • Video
Photos
Options
Print Property sheet
Send property sheet by mail
Schedule a visit
RealEstate Brokers
Hughes Jeffrey
+356 9980 0004
+356 9998 6779
+356 9998 6775
hughes@sensaramalta.com
Information request
Name *
Phone *
E-mail *
Request Details *
I authorize the processing of my personal data according Regolamento UE n. 679/2016 -
Privacy Policy
I authorize the processing of data for marketing purposes, promotional activities, commercial offers and market surveys.
Send
Share on
We also recommend
for Sale
Mosta, Already Built 2nd floor 3 Bedroom Apartment with Terrace and Balconies
440,000 €
for Sale
Mosta - Corner 3 Bedroom Apt Finished
404,500 €
for Sale
Zebbiegh - 3 Bedroom 3rd Floor Finished Apartment On Plan
400,000 €
Keep default settings X
Use of cookies
This site uses cookies. Our (own) cookies and those of our Partners (third party cookies) are used to offer you a unique experience with us. For this reason, together with our partners, we collect and process non-sensitive information (such as the identifier of your device or the pages you visit).
At any time you can delete, modify or verify the information you share in
Cookie preference
or in our
Cookie Policy
and
Privacy Policy
.
Necessary
Functional
Profiling
Analytics
Accept all
Decline all
Accept selected
Cookie preference