Toggle navigation
(+356) 2164 9500
(+356) 9998 6779
info@sensaramalta.com
Head Office - Sensara Malta
Triq Santa Marija, Safi
09.00 to 19.00 hrs
Monday to Saturday
Home
Properties
Sales
Rentals
Foreign
About us
Services
Contacts
Send your request
Previous
Next
1,024,000 €
CLICK HERE for DETAILED PHOTOS
Mellieha - 3 Bdr Penthouse + Pool + Views + Garage
Penthouse for sale • Mellieha
Ready Built and Luxury Fully Finished comes this 4th floor Penthouse with its own airspace and roof terrace with pool. Enjoying unobstructed sea views. Forming part of a new smart block of 8 units served with lift.
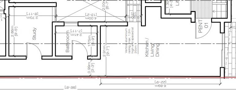
Property consists of an open plan kitchen/ living/ dining overlooking a large front terrace with unobstructed views, a corridor which leads to a pantry, guest toilet, bathroom and three double bedrooms (main with en-suite) and of which 2 overlook back terrace.
An internal spiral staircase leads you to the roof terrace with pool and breath taking views.
Property is to be sold fully finished including bathrooms and internal doors, fully air-conditioned and gypsum for ceiling. Freehold.
Complementing this property is an interconnected 2 car garage, included in the price.
Rooms and Features
Code
V005786
Locality
Mellieha
Property type
Penthouse
Price
1,024,000 €
Locals
1
Bedrooms
3
Bathrooms
2
Sqm
275
Terraces
3
Floor
4
Energetic class
Nondescript
Property Conditions
Perfect Conditions
Accessories:
Elevator
Photos • Floorplans • Video
Photos
Options
Print Property sheet
Send property sheet by mail
Schedule a visit
RealEstate Brokers
Schembri Maria Pawla
+356 7732 8183
+356 9998 6779
+356 9998 6775
pawla@sensaramalta.com
Information request
Name *
Phone *
E-mail *
Request Details *
I authorize the processing of my personal data according Regolamento UE n. 679/2016 -
Privacy Policy
I authorize the processing of data for marketing purposes, promotional activities, commercial offers and market surveys.
Send
Share on
We also recommend
for Sale
Pieta - 1 Bedroom Finished Penthouse Under Construction
318,000 €
for Sale
Kirkop - 2 Bedroom Fully Finished Duplex Penthouse On Plan
485,000 €
for Sale
Kirkop - 3 bedroom Finished Duplex Penthouse On Plan
485,000 €
Keep default settings X
Use of cookies
This site uses cookies. Our (own) cookies and those of our Partners (third party cookies) are used to offer you a unique experience with us. For this reason, together with our partners, we collect and process non-sensitive information (such as the identifier of your device or the pages you visit).
At any time you can delete, modify or verify the information you share in
Cookie preference
or in our
Cookie Policy
and
Privacy Policy
.
Necessary
Functional
Profiling
Analytics
Accept all
Decline all
Accept selected
Cookie preference